Architecture&Design Studio

Планувальні рішення
Цей пакет послуг дозволяє отримати розуміння зонування простору, розміщення меблів та побутової техніки. Містить необхідну мінімальну інформацію для початку робіт, є основою для подальшої роботи з будівельною бригадою та підбору меблів, оздоблення.
Деталі співпраці
Виїзд на обміри
Професійні обміри об'єкту та заповнення анкети на планувальне рішення - стартовий етап співпраці.
Варіанти планування
Виконуємо 3-5 варіантів планування приміщень, після чого корегуємо остаточний варіант згідно ваших побажань (не більше 8 варіантів).
Робоча документація
Виконуємо пакет креслень:
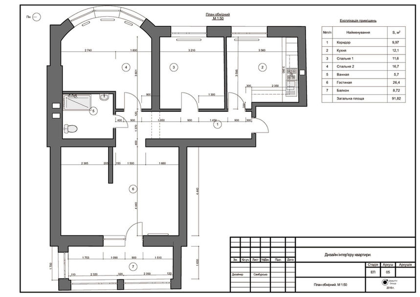
Обмірний план
План розміщення меблів з розмірами;
Плани демонтажу та монтажу
План сантехнічного обладнання
Термін виконання
Вартість
10-15 робочих днів
6 $/м² (для приміщень менше 50 м² - за вартістю 50 м²)
Приклад проекту. Планувальне рішення
Технічний дизайн проєкт
Розробляємо з огляду на ваш бюджет на ремонт, в даному пакеті проекту ви економите на фотореалістичних візуалізаціях та колажах. Дозволяє отримати повне розуміння розміщення меблів та побутової техніки, електрики та сантехніки. Включає в себе всі необхідні креслення для співпраці з будівельною бригадою, підбору меблів та оздоблення.
Деталі співпраці
Виїзд на обміри
Професійні обміри об'єкту та заповнення анкети - стартовий етап співпраці.
Варіанти планування
Виконуємо 3-5 варіантів планування приміщень, після чого корегуємо остаточний варіант згідно ваших побажань (не більше 8 варіантів).
Робоча документація для будівельників
Виконуємо пакет креслень:
-
План обмірів
-
План розміщення меблів з розмірами
-
Плани демонтажу та монтажу перегородок
-
План стель
-
План освітлення
-
План управління освітленням
-
План електрообладнання, специфікація електрообладнання
-
План теплої підлоги
-
План підлогових покриттів
-
План дверних отворів
-
План сантехнічного обладнання
-
Розгортки стін приміщень
-
Об'ємні види приміщень
-
Специфікації з переліком матеріалів та меблів, які використовуються у проєкті, з посиланнями на магазини
Термін виконання
від 15 робочих днів
Вартість
12 $/м² - житлові приміщення
(для приміщень менше 50 м² - за вартістю 50 м²);
10 $/м² - комерційні приміщення
Технічний проєкт з колажами
Цей пакет послуг є досить повним для виконання дизайну. Колажі з елементами тривимірної графіки допоможуть зрозуміти дизайн-концепцію та полегшити втілення проекту. Також включає в себе повний пакет креслень для підрядників.
Деталі співпраці
Виїзд на обміри
Професійні обміри об'єкту та заповнення анкети, підбір референсів - стартовий етап співпраці.
Варіанти планування
Виконуємо 3-5 варіантів планування приміщень, після чого корегуємо остаточний варіант згідно ваших побажань (не більше 8 варіантів).
Розробка концепції та підбір наповнення
На цьому етапі виконуємо загальний колаж концепції за кольором, матеріалами та стилістикою.
Після цього підбираємо меблі, оздоблення, освітлення з урахуванням бюджету.
Колажі
Виконуємо колажі на основі тривимірних моделей приміщень та підібраних елементів інтер'єру.
Робоча документація для будівельників
Виконуємо пакет креслень:
-
План обмірів
-
План розміщення меблів з розмірами
-
Плани демонтажу та монтажу перегородок
-
План стель
-
План освітлення
-
План управління освітленням
-
План електрообладнання, специфікація електрообладнання
-
План теплої підлоги, розміщення кондиціонерів
-
План підлогових покриттів
-
План дверних отворів
-
План сантехнічного обладнання
-
Розгортки стін приміщень
-
Об'ємні види приміщень
-
Специфікації з переліком матеріалів та меблів, які використовуються у проєкті, з посиланнями на магазини
Термін виконання
від 25 робочих днів
Вартість
20 $/м² (для приміщень менше 50 м² - за вартістю 50 м²)
Повний дизайн проєкт
Даний пакет послуг є найбільш популярним та дає найбільш повні відомості про стилістику, оздоблення та ремонт. Ключова відмінність – наявність фотореалістичних 3D візуалізацій майбутнього інтер'єру.
Деталі співпраці
Виїзд на обміри
Професійні обміри об'єкту та заповнення анкети, підбір референсів - стартовий етап співпраці.
Варіанти планування
Виконуємо 3-5 варіантів планування приміщень, після чого корегуємо остаточний варіант згідно ваших побажань (не біл ьше 8 варіантів).
Розробка концепції та підбір наповнення
На цьому етапі виконуємо загальний колаж концепції за кольором, матеріалами та стилістикою.
Після цього підбираємо меблі, оздоблення, освітлення з урахуванням бюджету.
3D візуалізації
Виконуємо 3D візуалізації на основі затвердженої дизайн концепції приміщень та орієнтовно підібраних елементів інтер'єру
Робоча документація для будівельників
Виконуємо пакет креслень:
-
План обмірів
-
План розміщення меблів з розмірами
-
Плани демонтажу та монтажу перегородок
-
План стель
-
План освітлення
-
План управління освітленням
-
План електрообладнання, специфікація електрообладнання
-
План теплої підлоги, розміщення кондиціонерів
-
План підлогових покриттів
-
План дверних отворів
-
План сантехнічного обладнання
-
Розгортки стін приміщень
-
Об'ємні види приміщень
-
Специфікації з переліком матеріалів та меблів, які використовуються у проєкті, з посиланнями на магазини
Термін виконання
від 30 робочих днів
Вартість
30 $/м² - житлові приміщення
(для приміщень менше 50 м² - за вартістю 50 м²);
20 $/м² - комерційні приміщення
Повний проект + авторський нагляд
До повного дизайн проєкту доцільно замовляють авторський нагляд.
Авторський нагляд - це супровід проекту дизайнером під час реалізації.
Деталі співпраці
Виконання повного дизайн- проєкту
Виконання проєкту дизайну інтер'єру є підставою для подальшої співпраці. І замовник, і дизайнер зацікавлені у якісній реалізації проекту, тому для вирішення нагальних питань за проектом вони продовжують співпрацю.
Авторський нагляд включає:
-
Контроль виконання та дотримання дизайн-проєкту.
-
Консультування та внесення необхідних правок у процесі ремонтно-будівельних робіт з технічних причин.
-
Регулярні виїзди на будівельний майданчик
-
Виїзди дизайнера за підбором меблів, матеріалів, декору за необхідності.
-
За домовленістю: декорування приміщень (килими, картини, штори та ін. предмети інтер'єру
Авторський нагляд не включає:
-
Закупівля матеріалів, елементів інтер'єру, укладання договорів з підрядниками від імені замовника та/або за його кошти
-
Контроль виконання будівельних робіт (це технічний нагляд, виконується суміжними спеціалістами)
-
Приймання, перевірка на об'єкті придбаних матеріалів, меблів та інших елементів інтер'єру
Термін виконання
авторський нагляд виконується протягом 3-4 місяців, з виїздами не частіше 1 раз на тиждень (за домовленістю сторін та з урахуванням розташування об'єкта)
Вартість
36 $/м² (для приміщень менше 50 м² - за вартістю 50 м²)
























